人气359
收藏
现代简约
四居
136m2
株洲
案例详情
? 对于将采光放首位的设计师来讲,极力平衡储物及采光的门厅区域,桥梁式的鞋凳及半透明柜门提供别出心裁的通透感,希望进入空间就能有几号的光感。
? 属于阳台的内空成为了客厅的延展,用了大面积的玻璃也是为了 更好的通风和采光。
? 观影区墙面的整体感下,由柔和的多个色块调和成渐进的层次,底部通透感始终保留。功能和美观始终处于相同的高度。
? 中岛与餐台的结合,使更多便利功能得以实现。
? 餐桌可化身为方便操作的大面积料理台,帮助忙碌的主人施展身手,为家人烹饪爱心餐点,因深知采光在居家舒适度中的比重,多功能活动室原本厚重的实心墙体,用通透的整面清玻移门取代,拉近家庭成员心灵距离,而小女孩的空间选择更“公主”粉红的墙纸粉红的床头柜,愿每晚有个粉红的美梦,主卧的选择相对更加冷静一些,不管在色彩还是材质的选择上都用了更加冷静的灰色,软配也更偏“成熟”。
? 希望更加敞亮的,简单的空间,嫩给主人带来更加惬意的生活方式。

■ 原始结构图

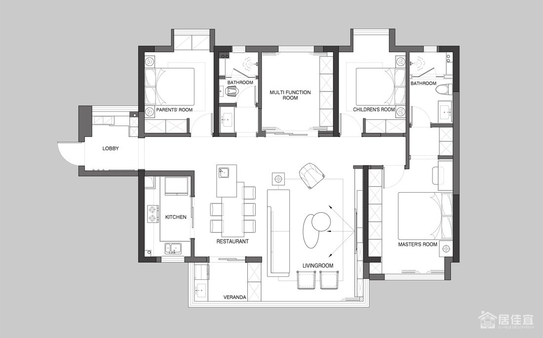
■ 平面布置图
① 客户希望入户在解决储物的同时,不让采光受到太大影响,同时要更宽敞的客餐厅,但是厨房过于的小,总觉得不够用。我们试着将靠窗位置用矮柜加不锈钢的形式,在可以放置物品的同时,光线尽量不受阻挡,而且桥梁式的鞋凳让大鞋柜与矮柜更好的衔接。
② 厨房比较小,在放置所需的设备后操作台面比较拮据,我们于是将部分功能放在餐厅,餐厅导台可以有更大的使用能量,而升降式的插座,也能满足用餐的各种用电需求。
③ 主卧室我们挪动了下门的位置,让衣柜的位置变的更加合理,并且大大增加了储物功能,这样女主人心怡的梳妆台也容纳的下了,而为了方便主人洗浴,还准备了一组小换衣柜在主卫门口,整个空间的颜色介于偏深一些,希望带来更多的色彩层次。

都市夜景中,因一片不受干扰的心灵绿洲,亦能香甜入梦。

极力平衡储物及采光的门厅区域,桥梁式的鞋凳及半透明柜门提供别出心裁的通透感。

格调,灰阶的平和。
工整,线条的凝练。

静谧,黑夜的深邃。
温和,木质的愈疗。

将所有能够开放的空间进行释放,整体空间顿时开阔了起来。

顶面采用无主灯设计,嵌入了磁吸轨道灯及局部射灯,让整体空间灯光具有良好的层次感。

窗外璨若星河,看似循环往复的隽永浪漫感缓慢流淌。
窗帘轨道内部设置了灯带,开灯效果。

几分恰到好处的开放格局及细枝末节,令豁达的居住理念贯穿全屋。
属于阳台的内空成为了客厅的延展,观影区墙面的整体感下,由柔和的多个色块调和成渐进的层次,底部通透感始终保留。
功能和美观始终处于相同的高度。

中岛与餐台的结合,使更多便利功能得以实现。


木制纹理的温和与大理石的冷峻在材质质感上进行对比,形成整体空间的高级感。
餐桌可化身为方便操作的大面积料理台,帮助忙碌的主人施展身手,为家人烹饪爱心餐点。
倒台与餐桌相互交错斜街,简洁而不失层次与美感。

主卧背景采用大面积的硬包装饰,在分隔上制作细节的层次节点。

让整体空间搭配层次分明,细节丰富耐看。

清醒时分,惬意迎来饱满白昼;
午憩时光,深思爱的陶醉;
黄昏时分,满怀喜悦归家;
临睡之前,为家人寄予深意祝福。

主卫
顺应格局及需求所作出的分离卫浴功能。

公卫
简约的色彩更有洁净感。

多功能房的设置,既满足了平时储物的功能,同时也预留出了亲子娱乐的空间。
局部设置开放柜,非常方便拿取,也是给宝宝预留出的玩具开放柜。

☆☆
陷入粉色的云朵中,互道晚安 ?
希望你有个甜甜的粉色梦境,我的粉色小公主。