人气545
收藏
中式现代
复式
403m2
金域天下
株洲
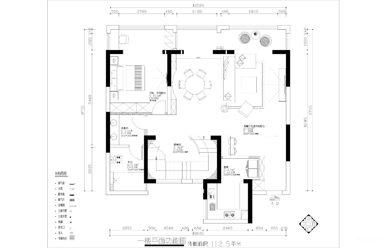
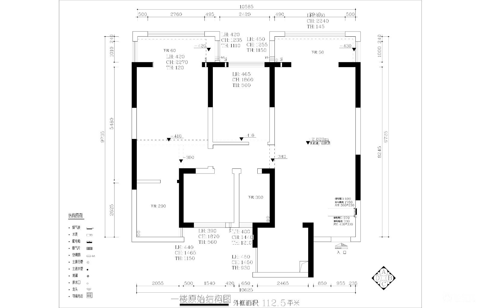
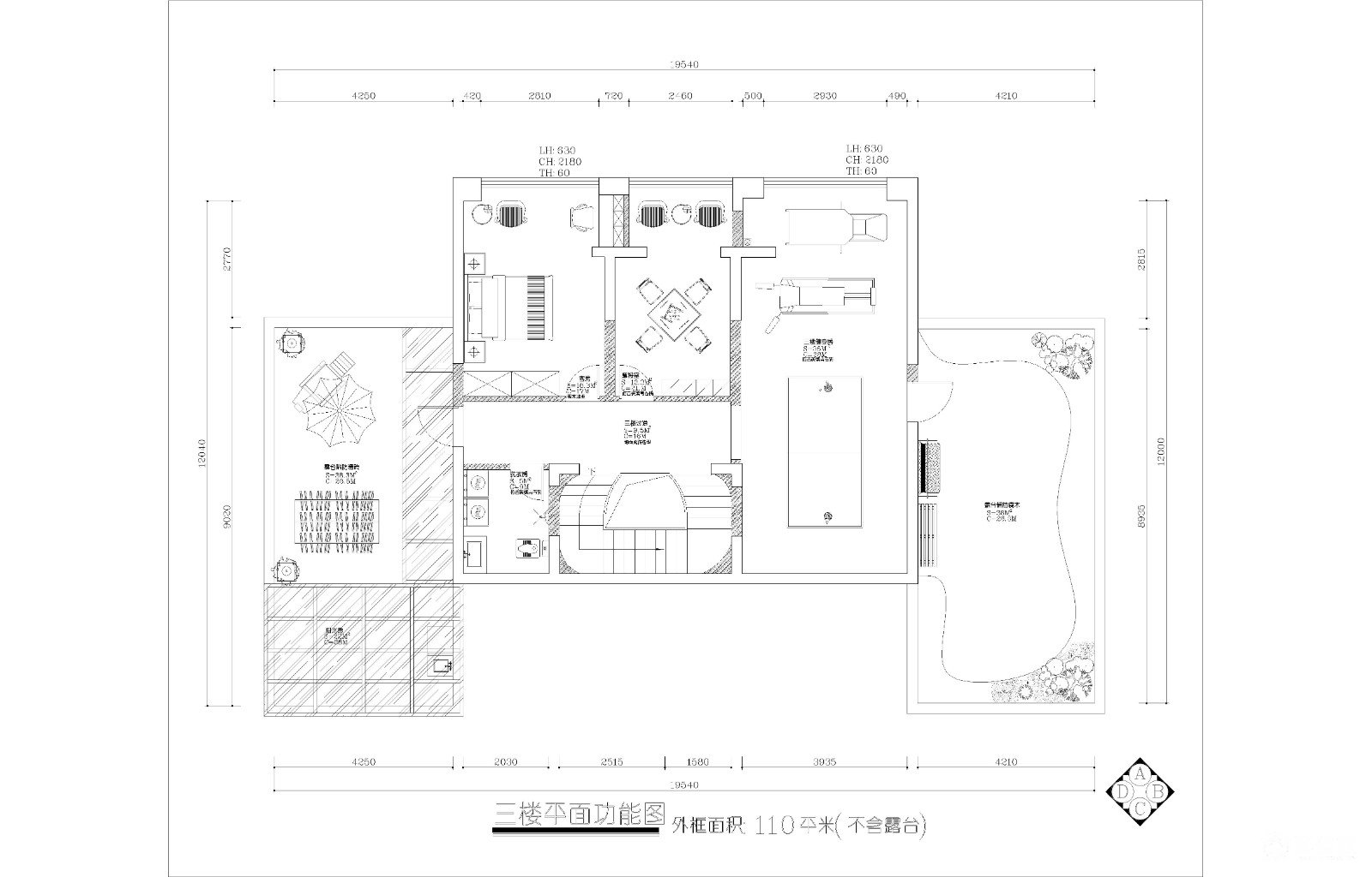
案例详情
材料说明:金刚釉、石材、实木线条、地面拼花、雕花板、墙布
设计创意说明:
中国人相对于来说都比较传统,对自己中国传统文化的喜欢,不仅比现在精神文明上,同时表现在传统中式风格设计上。中式风格在许多人的印象中还是厚重而刻板的形象,然而,在不失中式风格神韵的前提下大胆创新,完成了一次堪称完美的蜕变,为这种风格的家具注入了新的活力。
中式风格的家具通常已纯实木打造而成,质地比较坚硬,因此在舒适度上也难以满足。采用了胡桃木边框+布艺的材质,既结实耐用,又柔软舒适。银灰色的坐垫与靠背透入出一种低调的奢华,将这款沙发放置在客厅中,散发端庄而稳重的气质。
中式风格非常讲究空间的层次感,在需要隔绝视线的地方,则使用中式的屏风或窗棂、中式木门、工艺隔断,通过这种新的分隔方式,单元式住宅就展现出中式家具的层次之美。再以一些简约的造型为基础,添加了中式元素,使整体空间感觉更加丰富,大而不空、厚而不重。有格调又不显压抑。















