人气505
收藏
分享
现代简约
四居
160m2
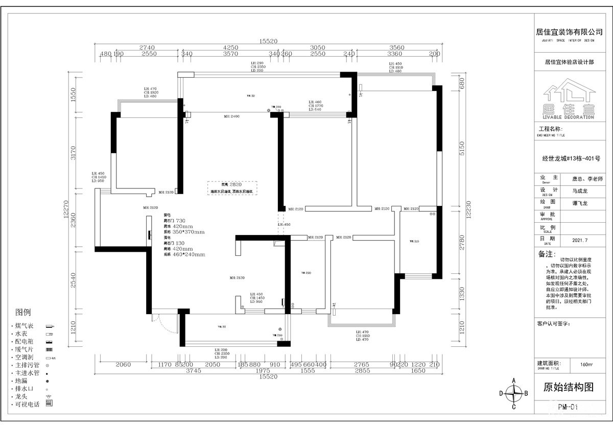
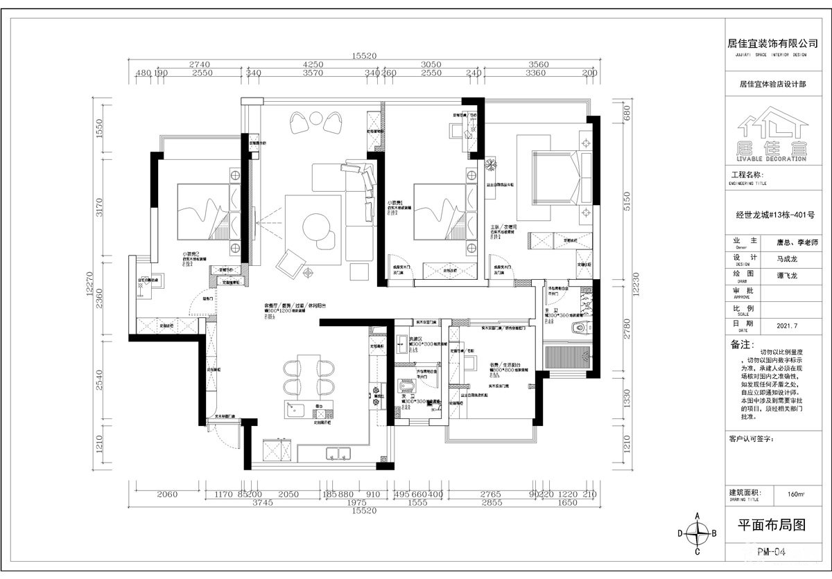
经世龙城
株洲
案例详情
设计说明:回归静默 内心怡然
居,或以有形的空间而存在,或是模糊恰与消弭了形体在空间中自由飘散的光影,最为相得益彰在此诞生生长、成熟从而打磨出了与时光相似的质地;氤氲着浪漫的因子,也正洋溢着诗意的情愫,并将温柔而独特的记忆永远的留存于——时间之外,内心之中。
联系我们:0731-28109918 / 0731-28838013
现代 | 逸都花园110m2
现代 | 湘水湾37-1903
现代 | 铁路小区76m2
新中式 | 神农养生城290m2
北欧 | 美大远域150m2
装修品牌材料
装修核心工艺
相关案例推荐
中式现代 | 金域天下三层复式楼
新中式 | 江湾一号151m2
现代简约 | 经世龙城161m2
轻奢 | 阳光新城樾府153m2
现代简约 | 经世龙城160m2
日式 | 玫瑰御园132m2
中式现代 | 盘龙世纪城玉兰谷164m2
欧式 | 中世纪贵族风
韩式 | 小清新公寓
韩式 | 韩式简约风