人气344
收藏
中式现代
一房一厅
106m2
株洲
案例详情
构一斗室,相傍山斋,内设茶具,教一童专主茶役,以供长日清谈,寒宵兀坐。
——文震亨《长物志》
本案比邻秦淮河,站在院子里,你能看到桨声灯影里十里秦谁的涟漪。如此外景就是最好的装饰,室内大部分尽量简洁低调,来契合外景。

餐厅部分是整个空间最暗的部分,北面和厨房相邻的空间又作为门面房,所以采光就更差了,靠南墙面的八角窗打开后,晚上坐在餐厅里就可以直接领略到河面的桨声灯影和波光粼粼。

椅子侧面的假窗是原来主卧室的门洞改造的,这样餐厅就会更完整,完全是个安静的空间。

餐厅过道看向茶室,借鉴中式园林的框景和借景手法达到一个移步换景,虚实相叠的效果。

你坐在窗里看风景,我坐在窗里看你。透过餐厅的角窗看茶室窗外的风景。

从餐厅的过道可以看到客厅一角的淡黄色的旧沙发,窗外河边的景色像一幅流动的画一年四季会变换出不同的色彩。


茶室一边是主卧,一边是客厅和卫生间。卫生间的隐形门和整面墙融为一体成为整个空间的背景板,让空间元素更加纯粹。地台简单的划分了动静空间。
自古禅茶一味。平静,朴素正是饮茶所需的心境。

现代生活虽不能完全避开车马喧嚣,但作为茶人的幸福是,可以在心中修篱种菊。问君何能尔?心远地自偏。

竹帘可以隔开夏日的曝晒,让阳光更柔和的洒进来。

品着茶看着秦淮河上慢悠悠的乌篷船,游在对岸绿树葱郁和白墙黛瓦的背景里。


卧室的窗户改成了落地移门更加方便进入花园,光线也更好。左边的转角写字台和床头柜连为一体。

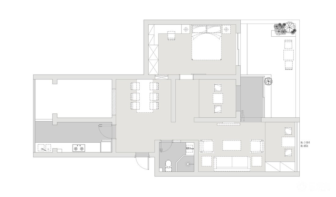
原始平面图 此户型室内原始空间纵深大,而且多为实墙不能轻易拆除,又是一楼,导致整体采光较暗,所以我们首先需要解决的问题就是空间的采光问题。

从功能入手了解到业主决定只留一个卧室,所以在格局上的优化主要是打开卧室的窗户改为落地玻璃门扩大光照面积增加采光;中间连着阳台的休闲空间把外面的玻璃门换成窄边的,里面一道门洞作为框景不做实门,这样既能增加采光还能在视觉上简化空间;另外一个大的房间打开作为客厅,做了个榻榻米增加储物也能作为临时休息的,平时作为榻来用也是客厅的一部分。中间的餐厅是最暗的部分,南北两面实墙挡住,只有北面两个门可以采光,但是北面光线很差,所以设计师在南面墙面开了个八角窗增加采光,和休闲室的八角门遥相呼应,形成了景中景。